SERIETA’, PROFESSIONALITA’ E TRASPARENZA DAL 1992
Toggle navigation
Home
Immobili
Vendite
Immobili commerciali
Affitti
Prestigio
Chi siamo
Servizi
Contatti
Compatta pannello di ricerca immobili
Espandi pannello di ricerca immobili
Tipologia
Vendite
Immobili commerciali
Affitti
Prestigio
Categoria
Qualsiasi
1 locale
2 locali
3 locali
4 o più locali
Appartamento
Attico
Azienda agricola
Baita
Cantina
Capannone
Casa singola
Castello
Duplex
Garage
Hotel
Laboratorio
Loft
Magazzino
Maisonette
Mansarda
Negozio
Porzione di casa
Porzione di villa
Posto auto
Posto barca
Rustico / Casale
Stabile / Palazzo
Tenuta
Terreno
Terreno agricolo
Terreno edificabile
Ufficio
Villa
Villa bifamiliare
Villetta a schiera
Città
Tutte
Bolzano (BZ)
Zona
Tutte
Prezzo (da - a)
Mq (da - a)
Codice
Ordinamento
Inserimento
Codice
Categoria
Città
Zona
Prezzo
Metri quadri
Cerca
BOLZANO VIA MERANO GARAGE IN VENDITA
25.000 €
17 m
2
Previous
Next
Foto
Codice
V000154
Città
Bolzano
(Periferia)
Categoria
Garage
Locali
1
Piano
Interrato
Classe energetica
Non applicabile
Stato Immobile
Nuovo
Grado
Medio
Posizione
Periferia
Pavimento
Cemento
Tipo Saracinesca
Elettrica
Accessori
Ascensore
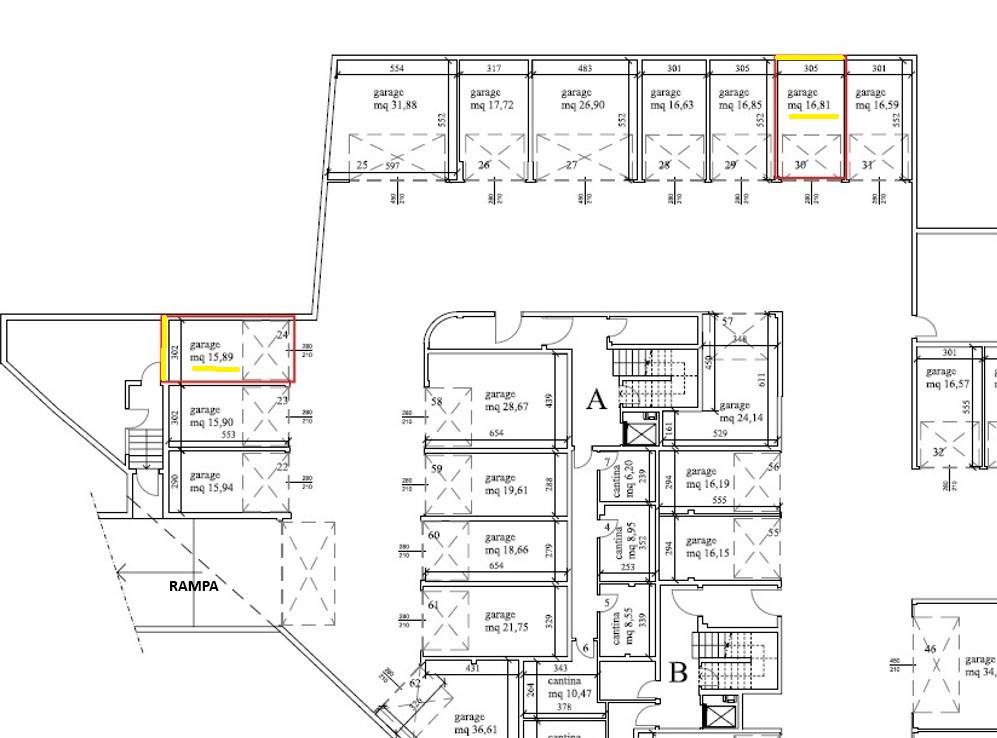
Nei pressi dell'Ospedale di Bolzano, in Via Merano 52, nel condominio "Gruenburg" realizzato nel 2010, abbiamo in vendita un garage (di superficie 17 mq) al prezzo di 25.000,00 Euro + IVA al10%.
Il garage è immediatamente disponibile.
E' libero da vincoli ed ipoteche.
Opzioni
Stampa scheda immobile
Invia scheda via mail
Richiedi informazioni
Nominativo *
Telefono *
Email *
Dettagli richiesta *
Autorizzo il trattamento dei miei dati personali in base Regolamento UE n. 679/2016
Privacy Policy
Autorizzo al trattamento dei dati per finalità di marketing, attività promozionali, offerte commerciali ed indagini di mercato.
Invia
Condividi
Tweet
Mantieni impostazioni di default X
Uso dei cookies
Questo sito fa uso di cookies. I nostri cookies (propri) e quelli dei nostri Partners (cookies di terzi) servono per poterti offrire un'esperienza unica con noi. Per questo motivo, insieme ai nostri partners, raccogliamo e processiamo informazioni non sensibili (come l'identificatore del tuo dispositivo o le pagine che visiti).
In qualsiasi momento potrai eliminare, modificare o verificare le informazioni che condividi in
Cookie preference
o nella nostra
Cookie Policy
e
Privacy Policy
.
Necessari
Funzionali
Profilazione
Analitici
Accetta tutti
Rifiuta tutti
Accetta selezionati
Cookie preference